For more information or to schedule a showing, click here.

289 Pr 7819
Hawkins Isd, Tx 75765

Price: $245,000
Property Type: residential
MLS #: 20260429
Agent:
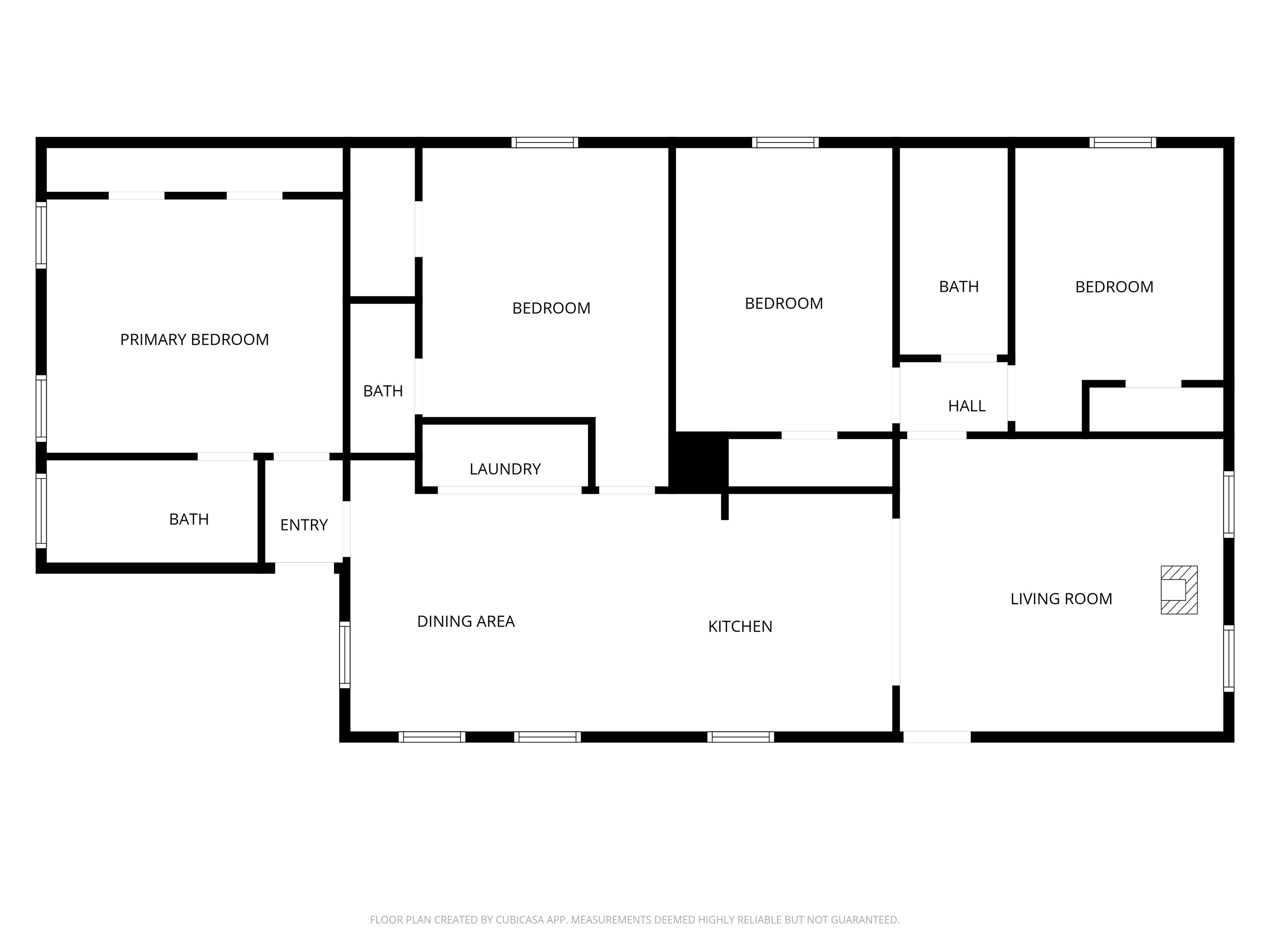
Situated on just under an acre with the option to purchase more, this charming 4-bedroom, 2.5-bath home with a brand new roof is ready for it's new owner! Inside, the home is inviting and comfortable, designed for everyday living and gatherings. The open living room is anchored by a cozy wood-burning stove framed by a beautiful stone backdrop, creating the perfect spot to curl up on cool evenings. Just off the living space, the kitchen features a double oven, electric cooktop, dishwasher, and a dedicated dining area that’s ideal for family meals, morning coffee, or hosting friends. Each bedroom offers a comfortable and private space for relaxing. Outside, the wooded lot provides plenty of space to garden, play, or simply relax and enjoy the quiet surroundings. With no HOA, you’ll have the freedom to truly make this home your own. If you’re dreaming of even more space, the adjoining acreage at TBD Private Road 7819 (MLS #25011936) is also available - perfect for expanding, investing, or creating your own homestead. Located in Hawkins ISD and just a short drive into town, this property offers the peace of country living with the convenience of the best nearby dining and entertainment. Don't miss out. Schedule your showing today!
Sq Ft: 1500
Area: Hawkins Isd
Year Built: 2013
Bedrooms: Four
Bathrooms: Two
1/2 Bathrooms: 1
Acres: 0.923
CONSTRUCTION : Slab Foundation
Heating : Central Electric
Cooling : Central Electric
UTILITY TYPE : Electric
CONSTRUCTION : Wood/Frame
WATER/SEWER : Well
Style : Ranch
CONSTRUCTION : Siding
WATER/SEWER : Conventional Septic
ROOM DESCRIPTION : 1 Living Area
DiningRoom : Kitchen/Eating Combo
InteriorFeatures : Ceiling Fan
KITCHEN EQUIPMENT : Double Oven
KITCHEN EQUIPMENT : Cooktop-Electric
KITCHEN EQUIPMENT : Dishwasher
ExteriorFeatures : Gutter(s)
DRIVEWAY : None Driveway


For More Information Reach Us At

(903) 984-0115